おすすめポイント
・スーパーアルプス恩方店まで徒歩7分、ほっともっと下恩方店まで徒歩3分のため生活利便性良好な立地。
・JR中央線「高尾」駅バス15分「川原宿大橋」停徒歩2分。
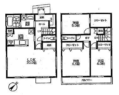
・広々としたLDK約20帖、シューズインクローゼットやウォークインクローゼット、各室収納など収納豊富な3LDK。
・2部屋からアクセス可能なワイドバルコニー。
・1階引き違い窓にシャッター付き(2か所電動シャッター)、1階小窓面格子付き、全窓網戸付き。
・カースペース1台分あり(車種による)。前面道路幅員約5mのため、車の出し入れしやすいです。
間取図

物件写真




現地案内図
物件概要
| 【価格】2950万円 |
| 【間取り】3LDK |
| 【所在地】八王子市下恩方町1852-1 |
| 【交通】JR中央線「高尾」駅バス15分「川原宿大橋」停徒歩2分 |
| 【土地面積】153.84㎡ |
| 【建物面積】104.34㎡ |
| 【建築確認番号】第R06確認建築八王子市00014号 |
| 【築年月】2026年2月(新築) |
| 【構造】木造2階建 |
| 【地目】宅地 |
| 【権利】所有権 |
| 【都市計画・用途地域】市街化区域・第一種低層住居専用地域 |
| 【建蔽率・容積率】40%・80% |
| 【接道】北西側約5.0m公道 |
| 【カースペース】1台分あり(車種による) |
| 【設備】東京電力・上下水道・プロパンガス |
| 【学区域】恩方第一小学校・恩方中学校 |
| 【引き渡し時期】相談 |
| 【取引態様】媒介(仲介) |
ご見学希望やお問い合わせはこちらから
【仲介手数料無料&キャッシュバック対象】八王子市下恩方町 2号棟 新築一戸建て 2950万円
