おすすめポイント
・旭が丘中央公園まで徒歩4分の緑豊かな住環境、旭が丘小学校まで徒歩6分のため、小さなお子様の通学も安心です。
・太陽光発電搭載物件、初期費用と月額費用が0円で利用できます。
・バス便の立地でカースペース2台分を確保(車種による)、来客時にも便利です。
・前面道路幅員約8.0mのため解放感あり、カースペースから車の出し入れしやすいです。
・1階トイレに独立した手洗器があるため、帰宅後の手洗いなど感染症予防にも対応可能な間取り。
・パントリーや納戸など収納豊富、奥行きのあるバルコニー付きの3LDK+S。
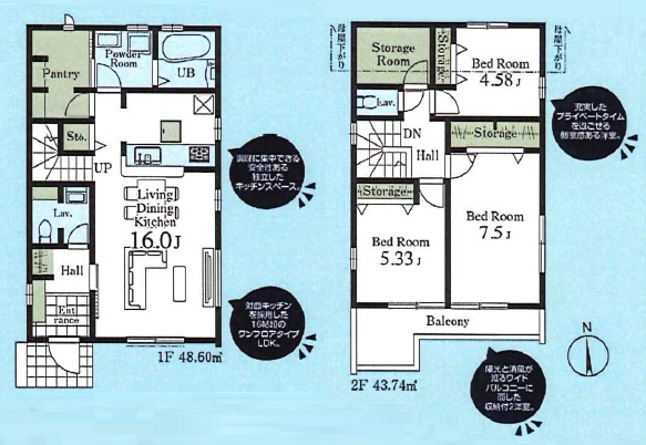
間取図

区画図

省エネ性能ラベル

物件写真(83枚)



















































































現地案内図
物件概要
| 【価格】4480万円 |
| 【間取り】3LDK+S |
| 【所在地】日野市旭が丘5-14-3 |
| 【交通】JR中央線「豊田」駅徒歩24分、JR八高線「北八王子」駅徒歩21分 JR中央線「豊田」駅バス8分「旭が丘中央公園」停徒歩7分 |
| 【土地面積】125.04㎡ |
| 【建物面積】92.34㎡ |
| 【建築確認番号】第25UDI1W建02500号 |
| 【築年月】2024年10月(新築) |
| 【構造】木造2階建 |
| 【地目】宅地 |
| 【権利】所有権 |
| 【都市計画・用途地域】市街化区域・第一種低層住居専用地域 |
| 【建蔽率・容積率】50%・100% |
| 【接道】西側約8.0m公道 |
| 【カースペース】2台分あり(車種による) |
| 【設備】東京電力・上下水道・都市ガス |
| 【学区域】旭が丘小学校・日野第四中学校 |
| 【引き渡し時期】相談 |
| 【取引態様】媒介(仲介) |
ご見学希望やお問い合わせはこちらから
【仲介手数料無料&キャッシュバック対象】日野市旭が丘第4 2号棟 新築一戸建て 4480万円
